不動産事業部 real estate
食事提供型共同住宅『Vista Mare』 ・鹿屋体育大学 体操競技部 専用

食事提供型共同住宅『Vista Mare』
Meal offer type Apartment house
鹿屋体育大学からおよそ1.3km、海の見える高台に位置します。
1階の食堂では朝・夕の2回、学生たちへ手作りの食事を提供しています。
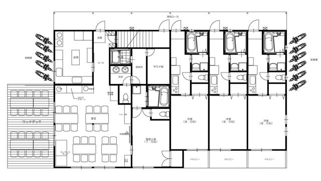
食事提供型共同住宅『Vista Mare』 1K 間取りLayout drawing
コンパクトでまとまりのあるプランニングにより、快適に過ごせる居住空間を実現。
無駄のない配置で、各居室の広さと十分な収納スペースを確保しました。

食事提供型共同住宅『Vista Mare』をのぞいてみようLook around
木造3階建てのデザイン性に富んだ外観は設計事務所ならではです。
食堂に設けられた掃き出し窓からはバーベキューが出来る広いウッドデッキが続きます。
大きな窓からはさえぎられることなく光がふりそそぎ、窓を開けると気持のよい風が通り抜けます。
勉強やスポーツによる疲れをしっかり癒せるようにと、便利な設備が充実しています。












基本仕様Basic spec
・所在:鹿屋市海道町1075-6 ・交通:海道町バス停500m ・構造:木造3階建て ・15戸
・平成26年3月完成 ・専有面積:27.91u ・バルコニー:4.2u
設備仕様
【各居室】
・キッチン設置 ・大型浴室バス1616設置 ・カラ―TVインターホン設置 ・エアコン設置 【共用部分】
・入居者専用衣類乾燥機設置 ・入居者専用サウナ設置 ・入居者専用シャワー室設置
・食堂併設(大型テレビ・DVDプレイヤー・マッサージチェア・エアコン・冷蔵庫 その他完備)
・ウッドデッキ設置 ・ダイヤル錠付郵便受け設置






