住宅、アパート・マンションの企画、設計、工事監理
お問い合わせ・ご相談はお気軽にどうぞ
Tel.
0994-42-2168
お問い合わせ・ご相談
サイトマップ
トップページ
HOME
業務内容
Work contents
ギャラリー
Gallery
コンセプト
Concept
会社概要
About
アクセス
Access
リンク集
Link
不動産事業部
Realestate
トップページ
>
ギャラリー
>
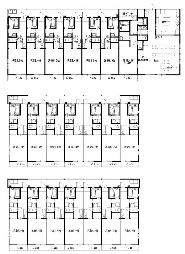
crescita(クレシタ)
crescita(クレシタ)
平成27年4月完成
所在地
鹿児島県鹿屋市海道町
床面積
203.54坪
構 造
木造3階建て
間取り
1K×20戸・管理人室・食堂
SITE MENU
トップページ
HOME
業務内容
Work contents
ギャラリー
Gallery
コンセプト
Concept
会社概要
About
アクセスマップ
Access
リンク集
Link
不動産事業部
Realestate
Blog
トップページ
業務内容
ギャラリー
コンセプト
会社概要
アクセスマップ
リンク集
不動産事業部
お問い合わせ・ご相談
サイトマップ
株式会社 鑪建築設計事務所
〒893-0013 鹿児島県鹿屋市札元2丁目3692-10 SRマンション3F
TEL:0994-42-2168 / FAX:0994-42-2513
Copyright 2000-2014 by Tatara Architects & Associates Allright reserved.